Kategorie
Dane podstawowe:

Cena: 495 000 PLN
Powierzchnia: 58.23 m²
Liczba pokoi: 3
Piętro: 1 / 1
Rok budowy: 2026
Na wyłączność: tak
Data dodania: 2026-04-09
Numer Oferty: MAR-OFS-90

Opis


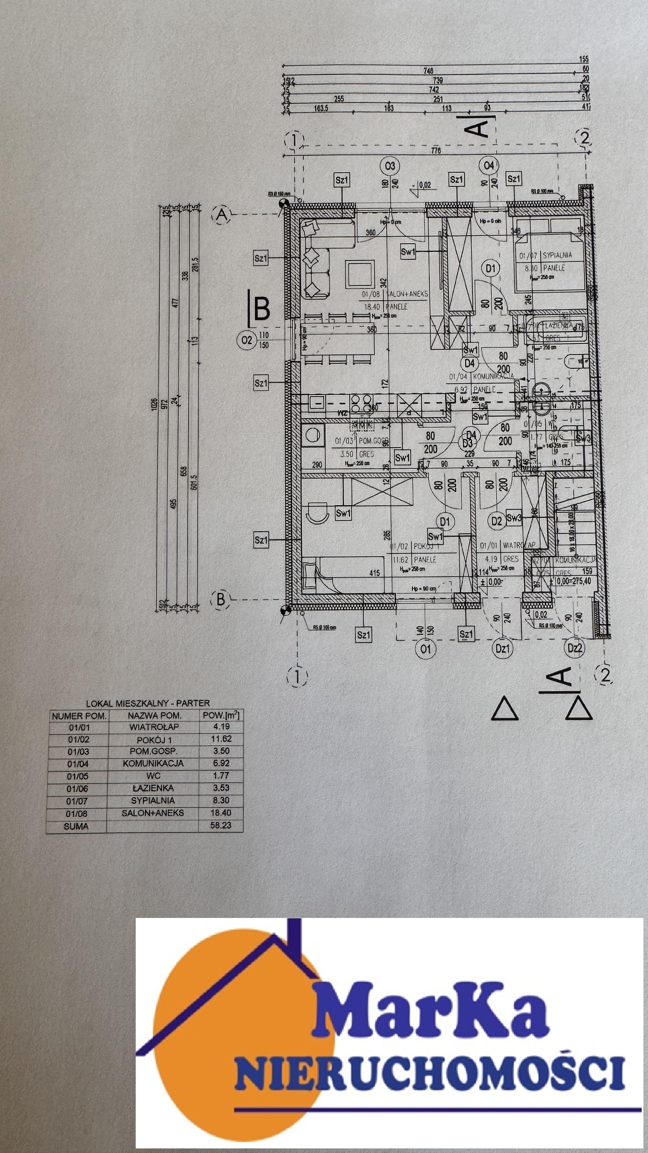
Na sprzedaż 12 nowych mieszkań w stanie deweloperskim o powierzchni parter 58,23m2 i piętro 64m2 zlokalizowanych kameralnych budynkach mieszkalnych jednorodzinnych w zabudowie bliźniaczej o dwóch lokalach mieszkalnych w każdym budynku. Mieszkanie na parterze składa się z sypialni o powierzchni o powierzchni 8,30m2, pokoju o pow. 11,62, salonu z aneksem kuchennym o pow. 18.40m2 z wyjściem na taras, łazienki o pow. 3,53m2 i wc o pow. 1,77m2, wiatrołapu pow. 4,19m2 i pomieszczenia gospodarczego o pow. 3,50m2, komunikacja 6,92. Do mieszkania przynależy ogródek ziemny. Cena 495000zł
Mieszkanie na piętrze składa się z sypialni o powierzchni o powierzchni 8,30m2, pokoju o pow. 12,30m2, salonu z aneksem kuchennym o pow. 18.40m2 z wyjściem na balkon, łazienki o pow. 5,64m2 i wc o pow. 1,53m2, wiatrołapu pow. 7,96m2 i pomieszczenia gospodarczego o pow. 3,38m2, komunikacja 6,75m2. Do mieszkania na piętrze przynależy poddasze nieużytkowe. Cena 525000zł.
W cenie mieszkań miejsca parkingowe zewnętrzne. Do zakupionego mieszkania istnieje możliwość zakupu garażu o pow. ok. 20-24m2. Mieszkania z ekspozycją okien wschód -zachód.
Ogrzewanie piecem dwufunkcyjnym gazowym. Planowany termin oddania inwestycji I Etap maj 2026r.


Dane szczegółowe:

Forma wlasności: własność
Garaż: miejsce parkingowe
Głośność: ciche
Kuchnia: w aneksie
Liczba poziomów: jednopoziomowe
Materiał: pustak
Okna: nowe plastikowe
Powierzchnia dodatkowa: taras
Stan instalacji: nowa
Stan mieszkania: w budowie
Typ zabudowy: dom
Zalety: teren ogrodzony
Lokalizacja
Video

Formularz Kontaktowy


Marek Król

marka.kielce@wp.pl

602572031